Areal Eggbühl

Schliessen
Info
Schliessen
Ort Zürich, ZH
Auftraggeber Allreal Generalunternehmung AG, Zürich
Jahr: 2014
Typ
  • Neubau
Programm
  • Dienstleistung/Gewerbe
  • Wohnen
Verfahren Testplanung
Mitarbeitende Andreas Galli, Yvonne Rudolf, Sabrina Maniglio, Robert Peter, Claudio Schiess, Luana Rossi, Manuel Nagel, Erich Schwyzer
Landschaft Müller Illien Landschaftsarchitekten, Zürich
Status Abgeschlossen
Projektnummer 231

Im Norden der Stadt Zürich entsteht ein neuer durchmischter Stadtteil mit Wohnsiedlungen, Geschäftshäusern und öffentlichen Parks. Die zu bebauende Parzelle liegt am Rande dieses dynamischen Entwicklungsgebiet “Neu-Oerlikon”.
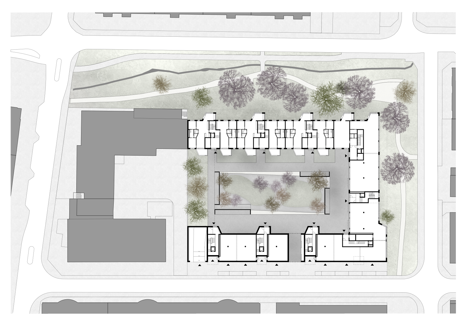
Basierend auf der gewünschten Integration des Projektes in den städtischen Kontext des Quartiers schliesst der Ersatzneubau das vorgefundene Blockrandfragment beinah ganz. Der Neubau reagiert mit seiner Höhenentwicklung auf die gegebenen örtlichen Richtlinien und füllt auf dem Baufeld das baurechtlich mögliche Volumen nahezu maximal aus. Die städtebaulich wichtigen Kanten werden durch einen streng rechteckigen und sechs- bis siebengeschossiger Baukörper kräftig markiert und gestärkt. Weil es in der Nähe genügend öffentliche Parks gibt und sich um das Baufeld herum eine offene Freihaltezone befindet, wird der im Blockinnern verfügbare Raum zum halbprivaten Aussenraum des Areals. Der Hof dient als Spiel- und Erholungsraum für die Bewohner und wird als ein geschützter Ort verstanden, der zum Herz und Mittelpunkt der neuen Überbauung wird. Ihm angegliedert ist ein Gemeinschaftsraum für die Bewohner der Arealüberbauung.
Die Hoftypologie erlaubt eine eindeutige Definition von öffentlichen Bereichen (Eggbühlstrasse) und dem privaten hinteren Bereich (Hof). Durch die präzise bauliche Setzung werden die öffentlichen Räume gestärkt. Die Erschliessung aller Wohnungen erfolgt über den Hof, dessen Zugang sich an der Eggbühlstrasse befindet.
Die Gebäudetypologie bietet ein vielseitiges und abwechslungsreiches Wohnungsangebot mit urbanem Charakter. Die Wohnungen basieren auf durchgehenden Raumfiguren mit eingestellten Zimmern und Nasszellen. Sie sind mit der geringen Gebäudetiefe lichtdurchflutet und hell. Durch die räumliche Organisation entstehen grosszügige Quer- und Diagonalbezüge.
Die Räumlichkeiten für das Gewerbe befinden sich im Erdgeschoss an publikumsorientierter Lage und sind als Verkaufslokale ebenso wie für Büroflächen geeignet.
Die Fassade wird mineralisch materialisiert und soll eine feine Tektonik ausdrücken,
welche die Eigenständigkeit und charakterstärke des Gebäudes unterstreicht. Eine zeitlose Architektursprache, identitätstiftende Aussenräume und Nutzungszuordnungen mit klarer Adressbildung tragen dazu bei, dass sich der Bau zu einem alltagstauglichen, lebensfähigen und durchmischten Stück Innenstadt entwickelt.